СантехМастер онлайн интернет-магазин сантехники в СПб (Санкт-Петербурге)
Интернет-магазин сантехники в Санкт-Петербурге
Каталог
По всему сайту
По каталогу
Каталог
Инженерная сантехника для водоснабжения, отопления и канализации
Трубы и фитинги металлопластиковые
Трубы и фитинги полипропиленовые
Резьбовые фитинги (соединения) для труб
Краны шаровые латунные резьбовые
Фильтр сетчатый (грязевик), фильтр с манометром
Внутренняя, наружная канализация, трубы и фитинги
Манжета, прокладка, кольцо резиновое, переход с чугуна
Сантехнический лен, нить, паста, скотч, клей, герметик, фум-лента
Коллекторы, коллекторные группы
Приборы учета
Кран (вентиль) для стиральной машины, бытовой техники, смесителя, мини
Сантехнический крепеж для труб, шпилька к стене, для унитаза
Трубы и фитинги для сшитого полиэтилена PEX, PERT
Ремонтная муфта, хомут, обойма, соед сантехнический
Подводки и шланги
Группа (системы) быстрого монтажа
Теплоизоляция, утеплитель, шумоизоляция, звукоизоляция для труб
Трубы медные и фитинги для медных труб
Труба гофрированная, гофра для металлопластиковых труб
Трубы и фитинги из оцинкованной стали
Система защиты, контроля от протечек воды
Фильтр для очистки воды, водоочистка, водоподготовка
Арматура предохранительная
Арматура регулирующая
Арматура запорная трубопроводная
Контрольно-измерительные приборы
Стальная чёрная, оцинкованная труба и фитинги
Трубы и фитинги из нержавеющей стали резьбовые и приварные AISI
Коллекторные шкафы
Элементы автоматики
Радиаторы отопления (батареи)
Радиаторы, батареи отопления алюминиевые
Радиаторы, батареи отопления биметаллические
Радиаторы, батареи отопления стальные панельные
Радиатор, батарея отопления чугунная
Радиаторы, батареи отопления трубчатые
Радиатор, батарея масляный обогреватель
Комплектующие для радиаторов батарей
Теплоносители
Клеевые соединения для водопровода
GENOVA (США)
Полотенцесушители
Полотенцесушители водяные
Полотенцесушители электрические
Комплектующие для полотенцесушителей
Инсталляции
Инсталляции для унитаза
Комплекты инсталляции с унитазом
Кнопка смыва
Комплектующие для инсталляций
Инсталляции для биде
Инсталляции для писсуаров
Инсталляции для раковин
Инсталляции для душевого трапа
Насосы и насосное оборудование
Дренажные насосы
Циркуляционные насосы
Скважинные насосы
Колодезные насосы
Вихревые насосы
Фекальные насосы
Поверхностные насосы
Насосные станции
Насосы повышения и стабилизации давления
Вибрационные насосы
Канализационные установки
Приборы и комплектующие для насосов
Насос для перекачки дизельного топлива
Мотопомпа бензиновая
Насос фонтанный AQUARIO (Италия)
Трубы ПНД и фитинги для водоснабжения
Труба ПНД
Фитинги для ПНД труб
Водонагреватели (бойлеры, газовые колонки , буферные емкости)
Водонагреватель (бойлер) электрический накопительный
Водонагреватель (бойлер) накопительный газовый
Водонагреватель (бойлер) электрический проточный
Водонагреватель проточный, газовая колонка
Водонагреватель (бойлер) косвенного нагрева
Водонагреватель (бойлер) комбинированный, универсальный
Буферные емкости
Комплектующие для водонагревателей
Баки расширительные для отопления и водоснабжения, комплектующие
Баки для систем водоснабжения
Баки для систем отопления
Комплектующие для расширительных баков
Теплый пол, греющий кабель, инфракрасный пол
Нагревательные маты для теплого пола
Инфракрасный пол под ламинат, плитку, линолеум, в стяжку
Кабель нагревательный, греющий
Система обогрева кровли, водостоков и труб
Терморегулятор тепла, термостат для теплого пола
Комплектующие для теплых полов, монтажные комплекты и наборы
Электро-водяной теплый пол
Коврики с подогревом
Смесители, душевое оборудование
Смесители для ванны и душа
Смесители для кухни, мойки
Смесители для раковины, умывальника
Смесители с гигиеническим душем
Смесители для биде
Комплектующие для смесителей
Наборы (SET) смесителей для ванной комнаты
Ванны
Бордюрная лента, декоративная плантка, плинтус для ванны
Ванны акриловые
Ванны из литьевого мрамора/камня
Ванны стальные
Ванны чугунные
Каркасы, опоры, ножки, ручки для ванн
Карнизы для ванн
Панели для ванн
Подголовники для ванн
Шторки для ванн
Ванны из полиэфирной смолы
Унитазы, биде, писсуары, комплектующие
Смеситель, кран для писсуара
Чаша Генуя
Биде, унитаз
Комплектующие, запчасти для унитаза
Писсуары
Сидение, крышка для унитаза
Унитаз детский
Унитаз для дачи
Унитаз компакт напольный
Унитаз подвесной
Унитаз приставной
Бачок для унитаза отдельно
Душевые кабины, двери, уголки, ограждения, поддоны
Душевые двери
Душевые кабины и боксы
Душевые ограждения, перегородки
Душевые поддоны
Душевые уголки
Комплектующие, запчасти, фурнитура для душевых кабин, перегородок, ограждений
Раковина для ванной, умывальник
Встроенная, мебельная раковина, умывальник
Накладная раковина, умывальник
Отдельностоящий умывальник, напольная раковина
Подвесной умывальник, раковина
Раковины пьедесталы моноблоки
Раковина на стиральную машину
Мойки для кухни и тумбы
Аксессуары для кухни, сушилки для посуды
Измельчитель пищевых отходов для раковины, кухонный диспоузер
Мойка врезная для кухни
Мойка накладная для кухни
Тумба под мойки
Шкаф сушилка кухонный навесной
Сеты смеситель + мойка
Мебель для ванной комнаты
Зеркало в ванную комнату
Комплектующие для мебели
Тумбы с раковиной/без раковины
Столешница под раковину в ванную
Шкаф в ванную
Шкаф пенал для ванной комнаты
Стеллаж в ванную комнату
Консоль в ванную комнату
Сифоны для раковины, мойки, душевого поддона, ванны
Выпуски для моек, раковин
Донный клапан, втулки для раковин, заглушки, розетки
Обвязки для ванн
Обратный клапан, сифоны, адаптеры для стиральной машины
Пробка, заглушка для ванны
Сифоны для душевых кабин, поддонов
Сифоны для моек, раковин
Сифоны для сбора конденсата
Труба гофрированная, латунь
Трап для душа, водоотводящий желоб и дождеприемник
Водоотводящие желоба, линейные трапы
Водоотводящие пристенные желоба, трапы
Воронка кровельная, листвоуловитель
Дождеприемник, дворовый трап
Трапы и решетки
Водоотводящий угловой трап
Котел и котельное оборудование
Автоматика, комплектующие для котлов
Газовый котел
Дымоходы
Твердотопливный котел
Электрический котел
Дизельный котел
Комбинированный котел
Пеллетные котлы
Кондиционеры, сплит-системы, очистители и увлажнители, осушители воздуха
Воздухоочиститель
Мобильные кондиционеры
Сплит-системы
Потолочные сплит-системы
Осушитель воздуха
Конвекторы, сушилки для рук, обогреватели, тепловые пушки,тепловентиляторы
Аксессуары и комплектующее к тепловентиляторам
Аксессуары к обогревателям, конвекторам
Конвекторы
Конвекторы внутрипольные
Обогреватели
Сушилки для рук
Тепловентиляторы
Тепловые завесы
Электрические/газовые тепловые пушки
Безынерционная отопительная панель
Баки пластиковые емкости
Автономная канализация, септики
Баки (бочки) для воды, емкости
Баки (бочки) для топлива, дизеля
Баки для душа, кабины и блоки
Баки для пивоварения, емкости
Баки для удобрения
Жироуловители
Кессоны для скважины
Комплектующие
Пескоуловители
Пожарное, противопожарное оборудование
Голова пожарная
Кран пожарный
Огнетушитель
Шкаф пожарный
Все инструменты
Инстумент STAHLMANN (Россия)
Инструмент MVI (Китай)
Инструмент NOVOPRESS (Германия)
Инструмент AQUAFLEX (Россия)
Инструмент AQUALINK (Китай)
Инструмент BLACK GEAR (Турция)
Инструмент CANDAN (Турция)
Инструмент DYTRON (Чехия)
Инструмент EKOPLASTIK (Чехия)
Инструмент FIT (Китай)
Инструмент HENCO (Бельгия)
Инструмент KEMPER (Италия)
Инструмент KRAFTOOL (Германия)
Инструмент LAVITA (Южная Корея)
Инструмент REHAU (Германия)
Инструмент RIDGID (Германия)
Инструмент ROMMER (Венгрия)
Инструмент STOUT (Италия)
Инструмент TECE (Германия)
Инструмент UPONOR (Финляндия)
Инструмент VALTEC (Италия)
Инструмент для радиаторов
Инструмент TIM (Россия)
Инструмент VIEIR (Китай)
Инструмент LAMMIN (Россия)
Инструмент Kromwell (Россия)
Инструмент ROTORICA (Россия)
Инструменты/стройматериалы ЗУБР (Россия)
Инструмент РОСТерм (Россия)
Аксессуары для ванной и туалета
Держатель для освежителя, фена, салфеток в ванную комнату
Держатель для салфеток
Держатель для полотенец, полотенцедержатель
Держатель для туалетной бумаги
Диспенсер, дозатор для мыла
Ершик туалетный для унитаза
Зеркало косметическое для ванной
Коврик для ванной комнаты
Крючок, вешалка для ванной
Мусорное ведро
Мыльницы
Полка, полочка для ванной комнаты
Поручень для ванной и туалета
Стаканы, держатель стаканов, зубных щёток для ванны
Штора, занавеска для ванной
Стойки, столики
Стульчик для ванной комнаты
Сушилка для белья
Сантехника для инвалидов и пожилых людей
Держатели для костылей
Поручни
Сиденье для душа
Унитазы
Сварочное оборудование
Аргонодуговая сварка TIG
Инверторы
Контактная сварка
Плазморезы
Полуавтоматы MIG/MAG
Профессиональные
Люки сантехнические, решетки вентиляционные, вентиляторы вытяжные
EVENT (Россия)
Практика (Россия)
Royal Thermo (КНР)
Распродажа сантехники
Инженерная сантехника
Мебель, Смесители , разное
Печи для бани и сауны, камины, мангалы
Грили, мангалы, очаги
Печь отопительная
Дымоходы и комплектующие
Комплектующие
Печи на углях
Печи-камин
Печь газовая
Печь на дровах для бани
Печь электрическая
Крепёжные системы, метизы, монтажные элементы
Крепеж и метизы STOUT (Россия/Китай)
Крепёжные системы WALRAVEN
Монтажные элементы STOUT (Россия/Китай)
Адреса и тел. магазинов
Для Юр. лиц
Доставка
Контакты отделов и руководителей
Ремонт и услуги
О компании
Юридическим лицам
Контакты отделов и руководителей
Новости
Сертификаты
+7 (812) 602-77-78
+7 (812) 602-77-78 Интернет-Магазин
+7 (812) 602-77-73 Для Юридических лиц
Заказать звонок
Задать вопрос
Войти
  • Корзина0
  • Избранные товары0
  • Сравнение товаров0
Ваш город
Санкт-Петербург
Санкт-Петербург
optstm@santehmaster.ru
  • Вконтакте
Ваш город
Санкт-Петербург
Санкт-Петербург
  • Адреса и тел. магазинов
  • Юр. лицам (оптовый отдел)
  • Доставка
  • Контакты отделов и руководителей
  • О компании
  • ...
    Войти
    Каталог
    По всему сайту
    По каталогу
    Интернет-Магазин
    +7 (812) 602-77-78
    optstm@santehmaster.ru
    Для Юридических лиц
    +7 (812) 602-77-73
    corporate@santehmaster.ru
    Сравнение0
    Избранные товары 0
    Корзина 0
    СантехМастер онлайн интернет-магазин сантехники в СПб (Санкт-Петербурге)
    • Инженерная сантехника для водоснабжения, отопления и канализации
      • Трубы и фитинги металлопластиковые Трубы и фитинги металлопластиковые
      • Трубы и фитинги полипропиленовые Трубы и фитинги полипропиленовые
      • Резьбовые фитинги (соединения) для труб Резьбовые фитинги (соединения) для труб
      • Краны шаровые латунные резьбовые Краны шаровые латунные резьбовые
      • Фильтр сетчатый (грязевик), фильтр с манометром Фильтр сетчатый (грязевик), фильтр с манометром
      • Внутренняя, наружная канализация, трубы и фитинги Внутренняя, наружная канализация, трубы и фитинги
      • Манжета, прокладка, кольцо резиновое, переход с чугуна Манжета, прокладка, кольцо резиновое, переход с чугуна
      • Сантехнический лен, нить, паста, скотч, клей, герметик, фум-лента Сантехнический лен, нить, паста, скотч, клей, герметик, фум-лента
      • Коллекторы, коллекторные группы Коллекторы, коллекторные группы
      • Приборы учета Приборы учета
      • Кран (вентиль) для стиральной машины, бытовой техники, смесителя, мини Кран (вентиль) для стиральной машины, бытовой техники, смесителя, мини
      • Сантехнический крепеж для труб, шпилька к стене, для унитаза Сантехнический крепеж для труб, шпилька к стене, для унитаза
      • Трубы и фитинги для сшитого полиэтилена PEX, PERT Трубы и фитинги для сшитого полиэтилена PEX, PERT
      • Ремонтная муфта, хомут, обойма, соед сантехнический Ремонтная муфта, хомут, обойма, соед сантехнический
      • Подводки и шланги Подводки и шланги
      • Группа (системы) быстрого монтажа Группа (системы) быстрого монтажа
      • Теплоизоляция, утеплитель, шумоизоляция, звукоизоляция для труб Теплоизоляция, утеплитель, шумоизоляция, звукоизоляция для труб
      • Трубы медные и фитинги для медных труб Трубы медные и фитинги для медных труб
      • Труба гофрированная, гофра для металлопластиковых труб Труба гофрированная, гофра для металлопластиковых труб
      • Трубы и фитинги из оцинкованной стали Трубы и фитинги из оцинкованной стали
      • Система защиты, контроля от протечек воды Система защиты, контроля от протечек воды
      • Фильтр для очистки воды, водоочистка, водоподготовка Фильтр для очистки воды, водоочистка, водоподготовка
      • Арматура предохранительная Арматура предохранительная
      • Арматура регулирующая Арматура регулирующая
      • Арматура запорная трубопроводная Арматура запорная трубопроводная
      • Контрольно-измерительные приборы Контрольно-измерительные приборы
      • Стальная чёрная, оцинкованная труба и фитинги Стальная чёрная, оцинкованная труба и фитинги
      • Трубы и фитинги из нержавеющей стали резьбовые и приварные AISI Трубы и фитинги из нержавеющей стали резьбовые и приварные AISI
      • Коллекторные шкафы Коллекторные шкафы
      • Элементы автоматики Элементы автоматики
    • Радиаторы отопления (батареи)
      • Радиаторы, батареи отопления алюминиевые Радиаторы, батареи отопления алюминиевые
      • Радиаторы, батареи отопления биметаллические Радиаторы, батареи отопления биметаллические
      • Радиаторы, батареи отопления стальные панельные Радиаторы, батареи отопления стальные панельные
      • Радиатор, батарея отопления чугунная Радиатор, батарея отопления чугунная
      • Радиаторы, батареи отопления трубчатые Радиаторы, батареи отопления трубчатые
      • Радиатор, батарея масляный обогреватель Радиатор, батарея масляный обогреватель
      • Комплектующие для радиаторов батарей Комплектующие для радиаторов батарей
      • Теплоносители Теплоносители
    • Клеевые соединения для водопровода
      • GENOVA (США) GENOVA (США)
    • Полотенцесушители
      • Полотенцесушители водяные Полотенцесушители водяные
      • Полотенцесушители электрические Полотенцесушители электрические
      • Комплектующие для полотенцесушителей Комплектующие для полотенцесушителей
    • Инсталляции
      • Инсталляции для унитаза Инсталляции для унитаза
      • Комплекты инсталляции с унитазом Комплекты инсталляции с унитазом
      • Кнопка смыва Кнопка смыва
      • Комплектующие для инсталляций Комплектующие для инсталляций
      • Инсталляции для биде Инсталляции для биде
      • Инсталляции для писсуаров Инсталляции для писсуаров
      • Инсталляции для раковин Инсталляции для раковин
      • Инсталляции для душевого трапа Инсталляции для душевого трапа
    • Насосы и насосное оборудование
      • Дренажные насосы Дренажные насосы
      • Циркуляционные насосы Циркуляционные насосы
      • Скважинные насосы Скважинные насосы
      • Колодезные насосы Колодезные насосы
      • Вихревые насосы Вихревые насосы
      • Фекальные насосы Фекальные насосы
      • Поверхностные насосы Поверхностные насосы
      • Насосные станции Насосные станции
      • Насосы повышения и стабилизации давления Насосы повышения и стабилизации давления
      • Вибрационные насосы Вибрационные насосы
      • Канализационные установки Канализационные установки
      • Приборы и комплектующие для насосов Приборы и комплектующие для насосов
      • Насос для перекачки дизельного топлива Насос для перекачки дизельного топлива
      • Мотопомпа бензиновая Мотопомпа бензиновая
      • Насос фонтанный AQUARIO (Италия)
    • Трубы ПНД и фитинги для водоснабжения
      • Труба ПНД Труба ПНД
      • Фитинги для ПНД труб Фитинги для ПНД труб
    • Водонагреватели (бойлеры, газовые колонки , буферные емкости)
      • Водонагреватель (бойлер) электрический накопительный Водонагреватель (бойлер) электрический накопительный
      • Водонагреватель (бойлер) накопительный газовый Водонагреватель (бойлер) накопительный газовый
      • Водонагреватель (бойлер) электрический проточный Водонагреватель (бойлер) электрический проточный
      • Водонагреватель проточный, газовая колонка Водонагреватель проточный, газовая колонка
      • Водонагреватель (бойлер) косвенного нагрева Водонагреватель (бойлер) косвенного нагрева
      • Водонагреватель (бойлер) комбинированный, универсальный Водонагреватель (бойлер) комбинированный, универсальный
      • Буферные емкости Буферные емкости
      • Комплектующие для водонагревателей Комплектующие для водонагревателей
    • Баки расширительные для отопления и водоснабжения, комплектующие
      • Баки для систем водоснабжения Баки для систем водоснабжения
      • Баки для систем отопления Баки для систем отопления
      • Комплектующие для расширительных баков Комплектующие для расширительных баков
    • Теплый пол, греющий кабель, инфракрасный пол
      • Нагревательные маты для теплого пола Нагревательные маты для теплого пола
      • Инфракрасный пол под ламинат, плитку, линолеум, в стяжку Инфракрасный пол под ламинат, плитку, линолеум, в стяжку
      • Кабель нагревательный, греющий Кабель нагревательный, греющий
      • Система обогрева кровли, водостоков и труб Система обогрева кровли, водостоков и труб
      • Терморегулятор тепла, термостат для теплого пола Терморегулятор тепла, термостат для теплого пола
      • Комплектующие для теплых полов, монтажные комплекты и наборы Комплектующие для теплых полов, монтажные комплекты и наборы
      • Электро-водяной теплый пол Электро-водяной теплый пол
      • Коврики с подогревом
    • Смесители, душевое оборудование
      • Смесители для ванны и душа Смесители для ванны и душа
      • Смесители для кухни, мойки Смесители для кухни, мойки
      • Смесители для раковины, умывальника Смесители для раковины, умывальника
      • Смесители с гигиеническим душем Смесители с гигиеническим душем
      • Смесители для биде Смесители для биде
      • Комплектующие для смесителей Комплектующие для смесителей
      • Наборы (SET) смесителей для ванной комнаты Наборы (SET) смесителей для ванной комнаты
    • Ванны
      • Бордюрная лента, декоративная плантка, плинтус для ванны Бордюрная лента, декоративная плантка, плинтус для ванны
      • Ванны акриловые Ванны акриловые
      • Ванны из литьевого мрамора/камня Ванны из литьевого мрамора/камня
      • Ванны стальные Ванны стальные
      • Ванны чугунные Ванны чугунные
      • Каркасы, опоры, ножки, ручки для ванн Каркасы, опоры, ножки, ручки для ванн
      • Карнизы для ванн Карнизы для ванн
      • Панели для ванн Панели для ванн
      • Подголовники для ванн Подголовники для ванн
      • Шторки для ванн Шторки для ванн
      • Ванны из полиэфирной смолы Ванны из полиэфирной смолы
    • Унитазы, биде, писсуары, комплектующие
      • Смеситель, кран для писсуара Смеситель, кран для писсуара
      • Чаша Генуя Чаша Генуя
      • Биде, унитаз Биде, унитаз
      • Комплектующие, запчасти для унитаза Комплектующие, запчасти для унитаза
      • Писсуары Писсуары
      • Сидение, крышка для унитаза Сидение, крышка для унитаза
      • Унитаз детский Унитаз детский
      • Унитаз для дачи Унитаз для дачи
      • Унитаз компакт напольный Унитаз компакт напольный
      • Унитаз подвесной Унитаз подвесной
      • Унитаз приставной Унитаз приставной
      • Бачок для унитаза отдельно Бачок для унитаза отдельно
    • Душевые кабины, двери, уголки, ограждения, поддоны
      • Душевые двери Душевые двери
      • Душевые кабины и боксы Душевые кабины и боксы
      • Душевые ограждения, перегородки Душевые ограждения, перегородки
      • Душевые поддоны Душевые поддоны
      • Душевые уголки Душевые уголки
      • Комплектующие, запчасти, фурнитура для душевых кабин, перегородок, ограждений Комплектующие, запчасти, фурнитура для душевых кабин, перегородок, ограждений
    • Раковина для ванной, умывальник
      • Встроенная, мебельная раковина, умывальник Встроенная, мебельная раковина, умывальник
      • Накладная раковина, умывальник Накладная раковина, умывальник
      • Отдельностоящий умывальник, напольная раковина Отдельностоящий умывальник, напольная раковина
      • Подвесной умывальник, раковина Подвесной умывальник, раковина
      • Раковины пьедесталы моноблоки Раковины пьедесталы моноблоки
      • Раковина на стиральную машину Раковина на стиральную машину
    • Мойки для кухни и тумбы
      • Аксессуары для кухни, сушилки для посуды Аксессуары для кухни, сушилки для посуды
      • Измельчитель пищевых отходов для раковины, кухонный диспоузер Измельчитель пищевых отходов для раковины, кухонный диспоузер
      • Мойка врезная для кухни Мойка врезная для кухни
      • Мойка накладная для кухни Мойка накладная для кухни
      • Тумба под мойки Тумба под мойки
      • Шкаф сушилка кухонный навесной Шкаф сушилка кухонный навесной
      • Сеты смеситель + мойка Сеты смеситель + мойка
    • Мебель для ванной комнаты
      • Зеркало в ванную комнату Зеркало в ванную комнату
      • Комплектующие для мебели Комплектующие для мебели
      • Тумбы с раковиной/без раковины Тумбы с раковиной/без раковины
      • Столешница под раковину в ванную Столешница под раковину в ванную
      • Шкаф в ванную Шкаф в ванную
      • Шкаф пенал для ванной комнаты Шкаф пенал для ванной комнаты
      • Стеллаж в ванную комнату Стеллаж в ванную комнату
      • Консоль в ванную комнату Консоль в ванную комнату
    • Сифоны для раковины, мойки, душевого поддона, ванны
      • Выпуски для моек, раковин Выпуски для моек, раковин
      • Донный клапан, втулки для раковин, заглушки, розетки Донный клапан, втулки для раковин, заглушки, розетки
      • Обвязки для ванн Обвязки для ванн
      • Обратный клапан, сифоны, адаптеры для стиральной машины Обратный клапан, сифоны, адаптеры для стиральной машины
      • Пробка, заглушка для ванны Пробка, заглушка для ванны
      • Сифоны для душевых кабин, поддонов Сифоны для душевых кабин, поддонов
      • Сифоны для моек, раковин Сифоны для моек, раковин
      • Сифоны для сбора конденсата Сифоны для сбора конденсата
      • Труба гофрированная, латунь Труба гофрированная, латунь
    • Трап для душа, водоотводящий желоб и дождеприемник
      • Водоотводящие желоба, линейные трапы Водоотводящие желоба, линейные трапы
      • Водоотводящие пристенные желоба, трапы Водоотводящие пристенные желоба, трапы
      • Воронка кровельная, листвоуловитель Воронка кровельная, листвоуловитель
      • Дождеприемник, дворовый трап Дождеприемник, дворовый трап
      • Трапы и решетки Трапы и решетки
      • Водоотводящий угловой трап Водоотводящий угловой трап
    • Котел и котельное оборудование
      • Автоматика, комплектующие для котлов Автоматика, комплектующие для котлов
      • Газовый котел Газовый котел
      • Дымоходы Дымоходы
      • Твердотопливный котел Твердотопливный котел
      • Электрический котел Электрический котел
      • Дизельный котел Дизельный котел
      • Комбинированный котел Комбинированный котел
      • Пеллетные котлы Пеллетные котлы
    • Кондиционеры, сплит-системы, очистители и увлажнители, осушители воздуха
      • Воздухоочиститель Воздухоочиститель
      • Мобильные кондиционеры Мобильные кондиционеры
      • Сплит-системы Сплит-системы
      • Потолочные сплит-системы Потолочные сплит-системы
      • Осушитель воздуха
    • Конвекторы, сушилки для рук, обогреватели, тепловые пушки,тепловентиляторы
      • Аксессуары и комплектующее к тепловентиляторам
      • Аксессуары к обогревателям, конвекторам Аксессуары к обогревателям, конвекторам
      • Конвекторы Конвекторы
      • Конвекторы внутрипольные Конвекторы внутрипольные
      • Обогреватели Обогреватели
      • Сушилки для рук Сушилки для рук
      • Тепловентиляторы Тепловентиляторы
      • Тепловые завесы Тепловые завесы
      • Электрические/газовые тепловые пушки Электрические/газовые тепловые пушки
      • Безынерционная отопительная панель Безынерционная отопительная панель
    • Баки пластиковые емкости
      • Автономная канализация, септики Автономная канализация, септики
      • Баки (бочки) для воды, емкости Баки (бочки) для воды, емкости
      • Баки (бочки) для топлива, дизеля Баки (бочки) для топлива, дизеля
      • Баки для душа, кабины и блоки Баки для душа, кабины и блоки
      • Баки для пивоварения, емкости Баки для пивоварения, емкости
      • Жироуловители Жироуловители
      • Кессоны для скважины Кессоны для скважины
      • Комплектующие Комплектующие
      • Пескоуловители Пескоуловители
    • Пожарное, противопожарное оборудование
      • Голова пожарная Голова пожарная
      • Кран пожарный Кран пожарный
      • Огнетушитель Огнетушитель
      • Шкаф пожарный Шкаф пожарный
    • Все инструменты
      • Инстумент STAHLMANN (Россия) Инстумент STAHLMANN (Россия)
      • Инструмент MVI (Китай) Инструмент MVI (Китай)
      • Инструмент NOVOPRESS (Германия) Инструмент NOVOPRESS (Германия)
      • Инструмент AQUAFLEX (Россия) Инструмент AQUAFLEX (Россия)
      • Инструмент AQUALINK (Китай) Инструмент AQUALINK (Китай)
      • Инструмент BLACK GEAR (Турция) Инструмент BLACK GEAR (Турция)
      • Инструмент CANDAN (Турция) Инструмент CANDAN (Турция)
      • Инструмент DYTRON (Чехия) Инструмент DYTRON (Чехия)
      • Инструмент EKOPLASTIK (Чехия) Инструмент EKOPLASTIK (Чехия)
      • Инструмент FIT (Китай) Инструмент FIT (Китай)
      • Инструмент HENCO (Бельгия) Инструмент HENCO (Бельгия)
      • Инструмент KEMPER (Италия) Инструмент KEMPER (Италия)
      • Инструмент KRAFTOOL (Германия) Инструмент KRAFTOOL (Германия)
      • Инструмент LAVITA (Южная Корея) Инструмент LAVITA (Южная Корея)
      • Инструмент REHAU (Германия) Инструмент REHAU (Германия)
      • Инструмент RIDGID (Германия) Инструмент RIDGID (Германия)
      • Инструмент ROMMER (Венгрия) Инструмент ROMMER (Венгрия)
      • Инструмент STOUT (Италия) Инструмент STOUT (Италия)
      • Инструмент TECE (Германия) Инструмент TECE (Германия)
      • Инструмент UPONOR (Финляндия) Инструмент UPONOR (Финляндия)
      • Инструмент VALTEC (Италия) Инструмент VALTEC (Италия)
      • Инструмент для радиаторов Инструмент для радиаторов
      • Инструмент TIM (Россия) Инструмент TIM (Россия)
      • Инструмент VIEIR (Китай) Инструмент VIEIR (Китай)
      • Инструмент LAMMIN (Россия) Инструмент LAMMIN (Россия)
      • Инструмент Kromwell (Россия) Инструмент Kromwell (Россия)
      • Инструмент ROTORICA (Россия) Инструмент ROTORICA (Россия)
      • Инструменты/стройматериалы ЗУБР (Россия) Инструменты/стройматериалы ЗУБР (Россия)
      • Инструмент РОСТерм (Россия) Инструмент РОСТерм (Россия)
    • Аксессуары для ванной и туалета
      • Держатель для освежителя, фена, салфеток в ванную комнату Держатель для освежителя, фена, салфеток в ванную комнату
      • Держатель для салфеток Держатель для салфеток
      • Держатель для полотенец, полотенцедержатель Держатель для полотенец, полотенцедержатель
      • Держатель для туалетной бумаги Держатель для туалетной бумаги
      • Диспенсер, дозатор для мыла Диспенсер, дозатор для мыла
      • Ершик туалетный для унитаза Ершик туалетный для унитаза
      • Зеркало косметическое для ванной Зеркало косметическое для ванной
      • Коврик для ванной комнаты Коврик для ванной комнаты
      • Крючок, вешалка для ванной Крючок, вешалка для ванной
      • Мусорное ведро Мусорное ведро
      • Мыльницы Мыльницы
      • Полка, полочка для ванной комнаты Полка, полочка для ванной комнаты
      • Поручень для ванной и туалета Поручень для ванной и туалета
      • Стаканы, держатель стаканов, зубных щёток для ванны Стаканы, держатель стаканов, зубных щёток для ванны
      • Штора, занавеска для ванной Штора, занавеска для ванной
      • Стойки, столики Стойки, столики
      • Стульчик для ванной комнаты Стульчик для ванной комнаты
      • Сушилка для белья Сушилка для белья
    • Сантехника для инвалидов и пожилых людей
      • Держатели для костылей Держатели для костылей
      • Поручни Поручни
      • Сиденье для душа Сиденье для душа
      • Унитазы Унитазы
    • Сварочное оборудование
      • Аргонодуговая сварка TIG Аргонодуговая сварка TIG
      • Инверторы Инверторы
      • Контактная сварка Контактная сварка
      • Плазморезы Плазморезы
      • Полуавтоматы MIG/MAG Полуавтоматы MIG/MAG
      • Профессиональные Профессиональные
    • Люки сантехнические, решетки вентиляционные, вентиляторы вытяжные
      • EVENT (Россия) EVENT (Россия)
      • Практика (Россия) Практика (Россия)
      • Royal Thermo (КНР) Royal Thermo (КНР)
    • Распродажа сантехники
      • Инженерная сантехника Инженерная сантехника
      • Мебель, Смесители , разное Мебель, Смесители , разное
    • Печи для бани и сауны, камины, мангалы
      • Грили, мангалы, очаги Грили, мангалы, очаги
      • Печь отопительная Печь отопительная
      • Дымоходы и комплектующие Дымоходы и комплектующие
      • Комплектующие Комплектующие
      • Печи на углях Печи на углях
      • Печи-камин Печи-камин
      • Печь газовая Печь газовая
      • Печь на дровах для бани Печь на дровах для бани
      • Печь электрическая Печь электрическая
    • Крепёжные системы, метизы, монтажные элементы
      • Крепеж и метизы STOUT (Россия/Китай)
      • Крепёжные системы WALRAVEN
      • Монтажные элементы STOUT (Россия/Китай)
    СантехМастер онлайн интернет-магазин сантехники в СПб (Санкт-Петербурге)
    Каталог
    • Инженерная сантехника для водоснабжения, отопления и канализации
      • Трубы и фитинги металлопластиковые
      • Трубы и фитинги полипропиленовые
      • Резьбовые фитинги (соединения) для труб
      • Краны шаровые латунные резьбовые
      • Фильтр сетчатый (грязевик), фильтр с манометром
      • Внутренняя, наружная канализация, трубы и фитинги
      • Манжета, прокладка, кольцо резиновое, переход с чугуна
      • Сантехнический лен, нить, паста, скотч, клей, герметик, фум-лента
      • Коллекторы, коллекторные группы
      • Приборы учета
      • Кран (вентиль) для стиральной машины, бытовой техники, смесителя, мини
      • Сантехнический крепеж для труб, шпилька к стене, для унитаза
      • Трубы и фитинги для сшитого полиэтилена PEX, PERT
      • Ремонтная муфта, хомут, обойма, соед сантехнический
      • Подводки и шланги
      • Группа (системы) быстрого монтажа
      • Теплоизоляция, утеплитель, шумоизоляция, звукоизоляция для труб
      • Трубы медные и фитинги для медных труб
      • Труба гофрированная, гофра для металлопластиковых труб
      • Трубы и фитинги из оцинкованной стали
      • Система защиты, контроля от протечек воды
      • Фильтр для очистки воды, водоочистка, водоподготовка
      • Арматура предохранительная
      • Арматура регулирующая
      • Арматура запорная трубопроводная
      • Контрольно-измерительные приборы
      • Стальная чёрная, оцинкованная труба и фитинги
      • Трубы и фитинги из нержавеющей стали резьбовые и приварные AISI
      • Коллекторные шкафы
      • Элементы автоматики
    • Радиаторы отопления (батареи)
      • Радиаторы, батареи отопления алюминиевые
      • Радиаторы, батареи отопления биметаллические
      • Радиаторы, батареи отопления стальные панельные
      • Радиатор, батарея отопления чугунная
      • Радиаторы, батареи отопления трубчатые
      • Радиатор, батарея масляный обогреватель
      • Комплектующие для радиаторов батарей
      • Теплоносители
    • Клеевые соединения для водопровода
      • GENOVA (США)
    • Полотенцесушители
      • Полотенцесушители водяные
      • Полотенцесушители электрические
      • Комплектующие для полотенцесушителей
    • Инсталляции
      • Инсталляции для унитаза
      • Комплекты инсталляции с унитазом
      • Кнопка смыва
      • Комплектующие для инсталляций
      • Инсталляции для биде
      • Инсталляции для писсуаров
      • Инсталляции для раковин
      • Инсталляции для душевого трапа
    • Насосы и насосное оборудование
      • Дренажные насосы
      • Циркуляционные насосы
      • Скважинные насосы
      • Колодезные насосы
      • Вихревые насосы
      • Фекальные насосы
      • Поверхностные насосы
      • Насосные станции
      • Насосы повышения и стабилизации давления
      • Вибрационные насосы
      • Канализационные установки
      • Приборы и комплектующие для насосов
      • Насос для перекачки дизельного топлива
      • Мотопомпа бензиновая
      • Насос фонтанный AQUARIO (Италия)
    • Трубы ПНД и фитинги для водоснабжения
      • Труба ПНД
      • Фитинги для ПНД труб
    • Водонагреватели (бойлеры, газовые колонки , буферные емкости)
      • Водонагреватель (бойлер) электрический накопительный
      • Водонагреватель (бойлер) накопительный газовый
      • Водонагреватель (бойлер) электрический проточный
      • Водонагреватель проточный, газовая колонка
      • Водонагреватель (бойлер) косвенного нагрева
      • Водонагреватель (бойлер) комбинированный, универсальный
      • Буферные емкости
      • Комплектующие для водонагревателей
    • Баки расширительные для отопления и водоснабжения, комплектующие
      • Баки для систем водоснабжения
      • Баки для систем отопления
      • Комплектующие для расширительных баков
    • Теплый пол, греющий кабель, инфракрасный пол
      • Нагревательные маты для теплого пола
      • Инфракрасный пол под ламинат, плитку, линолеум, в стяжку
      • Кабель нагревательный, греющий
      • Система обогрева кровли, водостоков и труб
      • Терморегулятор тепла, термостат для теплого пола
      • Комплектующие для теплых полов, монтажные комплекты и наборы
      • Электро-водяной теплый пол
      • Коврики с подогревом
    • Смесители, душевое оборудование
      • Смесители для ванны и душа
      • Смесители для кухни, мойки
      • Смесители для раковины, умывальника
      • Смесители с гигиеническим душем
      • Смесители для биде
      • Комплектующие для смесителей
      • Наборы (SET) смесителей для ванной комнаты
    • Ванны
      • Бордюрная лента, декоративная плантка, плинтус для ванны
      • Ванны акриловые
      • Ванны из литьевого мрамора/камня
      • Ванны стальные
      • Ванны чугунные
      • Каркасы, опоры, ножки, ручки для ванн
      • Карнизы для ванн
      • Панели для ванн
      • Подголовники для ванн
      • Шторки для ванн
      • Ванны из полиэфирной смолы
    • Унитазы, биде, писсуары, комплектующие
      • Смеситель, кран для писсуара
      • Чаша Генуя
      • Биде, унитаз
      • Комплектующие, запчасти для унитаза
      • Писсуары
      • Сидение, крышка для унитаза
      • Унитаз детский
      • Унитаз для дачи
      • Унитаз компакт напольный
      • Унитаз подвесной
      • Унитаз приставной
      • Бачок для унитаза отдельно
    • Душевые кабины, двери, уголки, ограждения, поддоны
      • Душевые двери
      • Душевые кабины и боксы
      • Душевые ограждения, перегородки
      • Душевые поддоны
      • Душевые уголки
      • Комплектующие, запчасти, фурнитура для душевых кабин, перегородок, ограждений
    • Раковина для ванной, умывальник
      • Встроенная, мебельная раковина, умывальник
      • Накладная раковина, умывальник
      • Отдельностоящий умывальник, напольная раковина
      • Подвесной умывальник, раковина
      • Раковины пьедесталы моноблоки
      • Раковина на стиральную машину
    • Мойки для кухни и тумбы
      • Аксессуары для кухни, сушилки для посуды
      • Измельчитель пищевых отходов для раковины, кухонный диспоузер
      • Мойка врезная для кухни
      • Мойка накладная для кухни
      • Тумба под мойки
      • Шкаф сушилка кухонный навесной
      • Сеты смеситель + мойка
    • Мебель для ванной комнаты
      • Зеркало в ванную комнату
      • Комплектующие для мебели
      • Тумбы с раковиной/без раковины
      • Столешница под раковину в ванную
      • Шкаф в ванную
      • Шкаф пенал для ванной комнаты
      • Стеллаж в ванную комнату
      • Консоль в ванную комнату
    • Сифоны для раковины, мойки, душевого поддона, ванны
      • Выпуски для моек, раковин
      • Донный клапан, втулки для раковин, заглушки, розетки
      • Обвязки для ванн
      • Обратный клапан, сифоны, адаптеры для стиральной машины
      • Пробка, заглушка для ванны
      • Сифоны для душевых кабин, поддонов
      • Сифоны для моек, раковин
      • Сифоны для сбора конденсата
      • Труба гофрированная, латунь
    • Трап для душа, водоотводящий желоб и дождеприемник
      • Водоотводящие желоба, линейные трапы
      • Водоотводящие пристенные желоба, трапы
      • Воронка кровельная, листвоуловитель
      • Дождеприемник, дворовый трап
      • Трапы и решетки
      • Водоотводящий угловой трап
    • Котел и котельное оборудование
      • Автоматика, комплектующие для котлов
      • Газовый котел
      • Дымоходы
      • Твердотопливный котел
      • Электрический котел
      • Дизельный котел
      • Комбинированный котел
      • Пеллетные котлы
    • Кондиционеры, сплит-системы, очистители и увлажнители, осушители воздуха
      • Воздухоочиститель
      • Мобильные кондиционеры
      • Сплит-системы
      • Потолочные сплит-системы
      • Осушитель воздуха
    • Конвекторы, сушилки для рук, обогреватели, тепловые пушки,тепловентиляторы
      • Аксессуары и комплектующее к тепловентиляторам
      • Аксессуары к обогревателям, конвекторам
      • Конвекторы
      • Конвекторы внутрипольные
      • Обогреватели
      • Сушилки для рук
      • Тепловентиляторы
      • Тепловые завесы
      • Электрические/газовые тепловые пушки
      • Безынерционная отопительная панель
    • Баки пластиковые емкости
      • Автономная канализация, септики
      • Баки (бочки) для воды, емкости
      • Баки (бочки) для топлива, дизеля
      • Баки для душа, кабины и блоки
      • Баки для пивоварения, емкости
      • Баки для удобрения
      • Жироуловители
      • Кессоны для скважины
      • Комплектующие
      • Пескоуловители
    • Пожарное, противопожарное оборудование
      • Голова пожарная
      • Кран пожарный
      • Огнетушитель
      • Шкаф пожарный
    • Все инструменты
      • Инстумент STAHLMANN (Россия)
      • Инструмент MVI (Китай)
      • Инструмент NOVOPRESS (Германия)
      • Инструмент AQUAFLEX (Россия)
      • Инструмент AQUALINK (Китай)
      • Инструмент BLACK GEAR (Турция)
      • Инструмент CANDAN (Турция)
      • Инструмент DYTRON (Чехия)
      • Инструмент EKOPLASTIK (Чехия)
      • Инструмент FIT (Китай)
      • Инструмент HENCO (Бельгия)
      • Инструмент KEMPER (Италия)
      • Инструмент KRAFTOOL (Германия)
      • Инструмент LAVITA (Южная Корея)
      • Инструмент REHAU (Германия)
      • Инструмент RIDGID (Германия)
      • Инструмент ROMMER (Венгрия)
      • Инструмент STOUT (Италия)
      • Инструмент TECE (Германия)
      • Инструмент UPONOR (Финляндия)
      • Инструмент VALTEC (Италия)
      • Инструмент для радиаторов
      • Инструмент TIM (Россия)
      • Инструмент VIEIR (Китай)
      • Инструмент LAMMIN (Россия)
      • Инструмент Kromwell (Россия)
      • Инструмент ROTORICA (Россия)
      • Инструменты/стройматериалы ЗУБР (Россия)
      • Инструмент РОСТерм (Россия)
    • Аксессуары для ванной и туалета
      • Держатель для освежителя, фена, салфеток в ванную комнату
      • Держатель для салфеток
      • Держатель для полотенец, полотенцедержатель
      • Держатель для туалетной бумаги
      • Диспенсер, дозатор для мыла
      • Ершик туалетный для унитаза
      • Зеркало косметическое для ванной
      • Коврик для ванной комнаты
      • Крючок, вешалка для ванной
      • Мусорное ведро
      • Мыльницы
      • Полка, полочка для ванной комнаты
      • Поручень для ванной и туалета
      • Стаканы, держатель стаканов, зубных щёток для ванны
      • Штора, занавеска для ванной
      • Стойки, столики
      • Стульчик для ванной комнаты
      • Сушилка для белья
    • Сантехника для инвалидов и пожилых людей
      • Держатели для костылей
      • Поручни
      • Сиденье для душа
      • Унитазы
    • Сварочное оборудование
      • Аргонодуговая сварка TIG
      • Инверторы
      • Контактная сварка
      • Плазморезы
      • Полуавтоматы MIG/MAG
      • Профессиональные
    • Люки сантехнические, решетки вентиляционные, вентиляторы вытяжные
      • EVENT (Россия)
      • Практика (Россия)
      • Royal Thermo (КНР)
    • Распродажа сантехники
      • Инженерная сантехника
      • Мебель, Смесители , разное
    • Печи для бани и сауны, камины, мангалы
      • Грили, мангалы, очаги
      • Печь отопительная
      • Дымоходы и комплектующие
      • Комплектующие
      • Печи на углях
      • Печи-камин
      • Печь газовая
      • Печь на дровах для бани
      • Печь электрическая
    • Крепёжные системы, метизы, монтажные элементы
      • Крепеж и метизы STOUT (Россия/Китай)
      • Крепёжные системы WALRAVEN
      • Монтажные элементы STOUT (Россия/Китай)
    Адреса и тел. магазинов
    Для Юр. лиц
    Доставка
    Контакты отделов и руководителей
    Ремонт и услуги
    О компании
    • Юридическим лицам
    • Контакты отделов и руководителей
    • Новости
    • Сертификаты
    +  ЕЩЕ
      Сравнение0
      Избранные товары 0
      Корзина 0
      СантехМастер онлайн интернет-магазин сантехники в СПб (Санкт-Петербурге)
      Сравнение0 Избранные товары 0 Корзина 0
      Телефоны
      +7 (812) 602-77-78 Интернет-Магазин
      +7 (812) 602-77-73 Для Юридических лиц
      • Каталог
        • Назад
        • Каталог
        • Инженерная сантехника для водоснабжения, отопления и канализации
          • Назад
          • Инженерная сантехника для водоснабжения, отопления и канализации
          • Трубы и фитинги металлопластиковые
          • Трубы и фитинги полипропиленовые
          • Резьбовые фитинги (соединения) для труб
          • Краны шаровые латунные резьбовые
          • Фильтр сетчатый (грязевик), фильтр с манометром
          • Внутренняя, наружная канализация, трубы и фитинги
          • Манжета, прокладка, кольцо резиновое, переход с чугуна
          • Сантехнический лен, нить, паста, скотч, клей, герметик, фум-лента
          • Коллекторы, коллекторные группы
          • Приборы учета
          • Кран (вентиль) для стиральной машины, бытовой техники, смесителя, мини
          • Сантехнический крепеж для труб, шпилька к стене, для унитаза
          • Трубы и фитинги для сшитого полиэтилена PEX, PERT
          • Ремонтная муфта, хомут, обойма, соед сантехнический
          • Подводки и шланги
          • Группа (системы) быстрого монтажа
          • Теплоизоляция, утеплитель, шумоизоляция, звукоизоляция для труб
          • Трубы медные и фитинги для медных труб
          • Труба гофрированная, гофра для металлопластиковых труб
          • Трубы и фитинги из оцинкованной стали
          • Система защиты, контроля от протечек воды
          • Фильтр для очистки воды, водоочистка, водоподготовка
          • Арматура предохранительная
          • Арматура регулирующая
          • Арматура запорная трубопроводная
          • Контрольно-измерительные приборы
          • Стальная чёрная, оцинкованная труба и фитинги
          • Трубы и фитинги из нержавеющей стали резьбовые и приварные AISI
          • Коллекторные шкафы
          • Элементы автоматики
        • Радиаторы отопления (батареи)
          • Назад
          • Радиаторы отопления (батареи)
          • Радиаторы, батареи отопления алюминиевые
          • Радиаторы, батареи отопления биметаллические
          • Радиаторы, батареи отопления стальные панельные
          • Радиатор, батарея отопления чугунная
          • Радиаторы, батареи отопления трубчатые
          • Радиатор, батарея масляный обогреватель
          • Комплектующие для радиаторов батарей
          • Теплоносители
        • Клеевые соединения для водопровода
          • Назад
          • Клеевые соединения для водопровода
          • GENOVA (США)
        • Полотенцесушители
          • Назад
          • Полотенцесушители
          • Полотенцесушители водяные
          • Полотенцесушители электрические
          • Комплектующие для полотенцесушителей
        • Инсталляции
          • Назад
          • Инсталляции
          • Инсталляции для унитаза
          • Комплекты инсталляции с унитазом
          • Кнопка смыва
          • Комплектующие для инсталляций
          • Инсталляции для биде
          • Инсталляции для писсуаров
          • Инсталляции для раковин
          • Инсталляции для душевого трапа
        • Насосы и насосное оборудование
          • Назад
          • Насосы и насосное оборудование
          • Дренажные насосы
          • Циркуляционные насосы
          • Скважинные насосы
          • Колодезные насосы
          • Вихревые насосы
          • Фекальные насосы
          • Поверхностные насосы
          • Насосные станции
          • Насосы повышения и стабилизации давления
          • Вибрационные насосы
          • Канализационные установки
          • Приборы и комплектующие для насосов
          • Насос для перекачки дизельного топлива
          • Мотопомпа бензиновая
          • Насос фонтанный AQUARIO (Италия)
        • Трубы ПНД и фитинги для водоснабжения
          • Назад
          • Трубы ПНД и фитинги для водоснабжения
          • Труба ПНД
          • Фитинги для ПНД труб
        • Водонагреватели (бойлеры, газовые колонки , буферные емкости)
          • Назад
          • Водонагреватели (бойлеры, газовые колонки , буферные емкости)
          • Водонагреватель (бойлер) электрический накопительный
          • Водонагреватель (бойлер) накопительный газовый
          • Водонагреватель (бойлер) электрический проточный
          • Водонагреватель проточный, газовая колонка
          • Водонагреватель (бойлер) косвенного нагрева
          • Водонагреватель (бойлер) комбинированный, универсальный
          • Буферные емкости
          • Комплектующие для водонагревателей
        • Баки расширительные для отопления и водоснабжения, комплектующие
          • Назад
          • Баки расширительные для отопления и водоснабжения, комплектующие
          • Баки для систем водоснабжения
          • Баки для систем отопления
          • Комплектующие для расширительных баков
        • Теплый пол, греющий кабель, инфракрасный пол
          • Назад
          • Теплый пол, греющий кабель, инфракрасный пол
          • Нагревательные маты для теплого пола
          • Инфракрасный пол под ламинат, плитку, линолеум, в стяжку
          • Кабель нагревательный, греющий
          • Система обогрева кровли, водостоков и труб
          • Терморегулятор тепла, термостат для теплого пола
          • Комплектующие для теплых полов, монтажные комплекты и наборы
          • Электро-водяной теплый пол
          • Коврики с подогревом
        • Смесители, душевое оборудование
          • Назад
          • Смесители, душевое оборудование
          • Смесители для ванны и душа
          • Смесители для кухни, мойки
          • Смесители для раковины, умывальника
          • Смесители с гигиеническим душем
          • Смесители для биде
          • Комплектующие для смесителей
          • Наборы (SET) смесителей для ванной комнаты
        • Ванны
          • Назад
          • Ванны
          • Бордюрная лента, декоративная плантка, плинтус для ванны
          • Ванны акриловые
          • Ванны из литьевого мрамора/камня
          • Ванны стальные
          • Ванны чугунные
          • Каркасы, опоры, ножки, ручки для ванн
          • Карнизы для ванн
          • Панели для ванн
          • Подголовники для ванн
          • Шторки для ванн
          • Ванны из полиэфирной смолы
        • Унитазы, биде, писсуары, комплектующие
          • Назад
          • Унитазы, биде, писсуары, комплектующие
          • Смеситель, кран для писсуара
          • Чаша Генуя
          • Биде, унитаз
          • Комплектующие, запчасти для унитаза
          • Писсуары
          • Сидение, крышка для унитаза
          • Унитаз детский
          • Унитаз для дачи
          • Унитаз компакт напольный
          • Унитаз подвесной
          • Унитаз приставной
          • Бачок для унитаза отдельно
        • Душевые кабины, двери, уголки, ограждения, поддоны
          • Назад
          • Душевые кабины, двери, уголки, ограждения, поддоны
          • Душевые двери
          • Душевые кабины и боксы
          • Душевые ограждения, перегородки
          • Душевые поддоны
          • Душевые уголки
          • Комплектующие, запчасти, фурнитура для душевых кабин, перегородок, ограждений
        • Раковина для ванной, умывальник
          • Назад
          • Раковина для ванной, умывальник
          • Встроенная, мебельная раковина, умывальник
          • Накладная раковина, умывальник
          • Отдельностоящий умывальник, напольная раковина
          • Подвесной умывальник, раковина
          • Раковины пьедесталы моноблоки
          • Раковина на стиральную машину
        • Мойки для кухни и тумбы
          • Назад
          • Мойки для кухни и тумбы
          • Аксессуары для кухни, сушилки для посуды
          • Измельчитель пищевых отходов для раковины, кухонный диспоузер
          • Мойка врезная для кухни
          • Мойка накладная для кухни
          • Тумба под мойки
          • Шкаф сушилка кухонный навесной
          • Сеты смеситель + мойка
        • Мебель для ванной комнаты
          • Назад
          • Мебель для ванной комнаты
          • Зеркало в ванную комнату
          • Комплектующие для мебели
          • Тумбы с раковиной/без раковины
          • Столешница под раковину в ванную
          • Шкаф в ванную
          • Шкаф пенал для ванной комнаты
          • Стеллаж в ванную комнату
          • Консоль в ванную комнату
        • Сифоны для раковины, мойки, душевого поддона, ванны
          • Назад
          • Сифоны для раковины, мойки, душевого поддона, ванны
          • Выпуски для моек, раковин
          • Донный клапан, втулки для раковин, заглушки, розетки
          • Обвязки для ванн
          • Обратный клапан, сифоны, адаптеры для стиральной машины
          • Пробка, заглушка для ванны
          • Сифоны для душевых кабин, поддонов
          • Сифоны для моек, раковин
          • Сифоны для сбора конденсата
          • Труба гофрированная, латунь
        • Трап для душа, водоотводящий желоб и дождеприемник
          • Назад
          • Трап для душа, водоотводящий желоб и дождеприемник
          • Водоотводящие желоба, линейные трапы
          • Водоотводящие пристенные желоба, трапы
          • Воронка кровельная, листвоуловитель
          • Дождеприемник, дворовый трап
          • Трапы и решетки
          • Водоотводящий угловой трап
        • Котел и котельное оборудование
          • Назад
          • Котел и котельное оборудование
          • Автоматика, комплектующие для котлов
          • Газовый котел
          • Дымоходы
          • Твердотопливный котел
          • Электрический котел
          • Дизельный котел
          • Комбинированный котел
          • Пеллетные котлы
        • Кондиционеры, сплит-системы, очистители и увлажнители, осушители воздуха
          • Назад
          • Кондиционеры, сплит-системы, очистители и увлажнители, осушители воздуха
          • Воздухоочиститель
          • Мобильные кондиционеры
          • Сплит-системы
          • Потолочные сплит-системы
          • Осушитель воздуха
        • Конвекторы, сушилки для рук, обогреватели, тепловые пушки,тепловентиляторы
          • Назад
          • Конвекторы, сушилки для рук, обогреватели, тепловые пушки,тепловентиляторы
          • Аксессуары и комплектующее к тепловентиляторам
          • Аксессуары к обогревателям, конвекторам
          • Конвекторы
          • Конвекторы внутрипольные
          • Обогреватели
          • Сушилки для рук
          • Тепловентиляторы
          • Тепловые завесы
          • Электрические/газовые тепловые пушки
          • Безынерционная отопительная панель
        • Баки пластиковые емкости
          • Назад
          • Баки пластиковые емкости
          • Автономная канализация, септики
          • Баки (бочки) для воды, емкости
          • Баки (бочки) для топлива, дизеля
          • Баки для душа, кабины и блоки
          • Баки для пивоварения, емкости
          • Баки для удобрения
          • Жироуловители
          • Кессоны для скважины
          • Комплектующие
          • Пескоуловители
        • Пожарное, противопожарное оборудование
          • Назад
          • Пожарное, противопожарное оборудование
          • Голова пожарная
          • Кран пожарный
          • Огнетушитель
          • Шкаф пожарный
        • Все инструменты
          • Назад
          • Все инструменты
          • Инстумент STAHLMANN (Россия)
          • Инструмент MVI (Китай)
          • Инструмент NOVOPRESS (Германия)
          • Инструмент AQUAFLEX (Россия)
          • Инструмент AQUALINK (Китай)
          • Инструмент BLACK GEAR (Турция)
          • Инструмент CANDAN (Турция)
          • Инструмент DYTRON (Чехия)
          • Инструмент EKOPLASTIK (Чехия)
          • Инструмент FIT (Китай)
          • Инструмент HENCO (Бельгия)
          • Инструмент KEMPER (Италия)
          • Инструмент KRAFTOOL (Германия)
          • Инструмент LAVITA (Южная Корея)
          • Инструмент REHAU (Германия)
          • Инструмент RIDGID (Германия)
          • Инструмент ROMMER (Венгрия)
          • Инструмент STOUT (Италия)
          • Инструмент TECE (Германия)
          • Инструмент UPONOR (Финляндия)
          • Инструмент VALTEC (Италия)
          • Инструмент для радиаторов
          • Инструмент TIM (Россия)
          • Инструмент VIEIR (Китай)
          • Инструмент LAMMIN (Россия)
          • Инструмент Kromwell (Россия)
          • Инструмент ROTORICA (Россия)
          • Инструменты/стройматериалы ЗУБР (Россия)
          • Инструмент РОСТерм (Россия)
        • Аксессуары для ванной и туалета
          • Назад
          • Аксессуары для ванной и туалета
          • Держатель для освежителя, фена, салфеток в ванную комнату
          • Держатель для салфеток
          • Держатель для полотенец, полотенцедержатель
          • Держатель для туалетной бумаги
          • Диспенсер, дозатор для мыла
          • Ершик туалетный для унитаза
          • Зеркало косметическое для ванной
          • Коврик для ванной комнаты
          • Крючок, вешалка для ванной
          • Мусорное ведро
          • Мыльницы
          • Полка, полочка для ванной комнаты
          • Поручень для ванной и туалета
          • Стаканы, держатель стаканов, зубных щёток для ванны
          • Штора, занавеска для ванной
          • Стойки, столики
          • Стульчик для ванной комнаты
          • Сушилка для белья
        • Сантехника для инвалидов и пожилых людей
          • Назад
          • Сантехника для инвалидов и пожилых людей
          • Держатели для костылей
          • Поручни
          • Сиденье для душа
          • Унитазы
        • Сварочное оборудование
          • Назад
          • Сварочное оборудование
          • Аргонодуговая сварка TIG
          • Инверторы
          • Контактная сварка
          • Плазморезы
          • Полуавтоматы MIG/MAG
          • Профессиональные
        • Люки сантехнические, решетки вентиляционные, вентиляторы вытяжные
          • Назад
          • Люки сантехнические, решетки вентиляционные, вентиляторы вытяжные
          • EVENT (Россия)
          • Практика (Россия)
          • Royal Thermo (КНР)
        • Распродажа сантехники
          • Назад
          • Распродажа сантехники
          • Инженерная сантехника
          • Мебель, Смесители , разное
        • Печи для бани и сауны, камины, мангалы
          • Назад
          • Печи для бани и сауны, камины, мангалы
          • Грили, мангалы, очаги
          • Печь отопительная
          • Дымоходы и комплектующие
          • Комплектующие
          • Печи на углях
          • Печи-камин
          • Печь газовая
          • Печь на дровах для бани
          • Печь электрическая
        • Крепёжные системы, метизы, монтажные элементы
          • Назад
          • Крепёжные системы, метизы, монтажные элементы
          • Крепеж и метизы STOUT (Россия/Китай)
          • Крепёжные системы WALRAVEN
          • Монтажные элементы STOUT (Россия/Китай)
      • Адреса и тел. магазинов
      • Для Юр. лиц
      • Доставка
      • Контакты отделов и руководителей
      • Ремонт и услуги
      • О компании
        • Назад
        • О компании
        • Юридическим лицам
        • Контакты отделов и руководителей
        • Новости
        • Сертификаты
      • Санкт-Петербург
        • Назад
      • Личный кабинет
      • Корзина0
      • Избранные товары0
      • Сравнение товаров0
      • +7 (812) 602-77-78Интернет-Магазин
        • Назад
        • Телефоны
        • +7 (812) 602-77-78 Интернет-Магазин
        • +7 (812) 602-77-73 Для Юридических лиц
      Контактная информация
      optstm@santehmaster.ru
      • Вконтакте
      Главная
      —
      Каталог
      —
      Баки пластиковые емкости
      Инженерная сантехника для водоснабжения, отопления и канализацииРадиаторы отопления (батареи)Клеевые соединения для водопроводаПолотенцесушителиИнсталляцииНасосы и насосное оборудованиеТрубы ПНД и фитинги для водоснабженияВодонагреватели (бойлеры, газовые колонки , буферные емкости)Баки расширительные для отопления и водоснабжения, комплектующиеТеплый пол, греющий кабель, инфракрасный полСмесители, душевое оборудованиеВанныУнитазы, биде, писсуары, комплектующиеДушевые кабины, двери, уголки, ограждения, поддоныРаковина для ванной, умывальникМойки для кухни и тумбыМебель для ванной комнатыСифоны для раковины, мойки, душевого поддона, ванныТрап для душа, водоотводящий желоб и дождеприемникКотел и котельное оборудованиеКондиционеры, сплит-системы, очистители и увлажнители, осушители воздухаКонвекторы, сушилки для рук, обогреватели, тепловые пушки,тепловентиляторыПожарное, противопожарное оборудованиеВсе инструментыАксессуары для ванной и туалетаСантехника для инвалидов и пожилых людейСварочное оборудованиеЛюки сантехнические, решетки вентиляционные, вентиляторы вытяжныеРаспродажа сантехникиПечи для бани и сауны, камины, мангалыКрепёжные системы, метизы, монтажные элементы
      —
      Автономная канализация, септики
      Баки (бочки) для воды, емкостиБаки (бочки) для топлива, дизеляБаки для душа, кабины и блокиБаки для пивоварения, емкостиЖироуловителиКессоны для скважиныКомплектующиеПескоуловители
      —
      ТЕРМИТ (Россия)
      ЭКОПРОМ (Россия)
      —
      Подземная емкость, накопитель
      Дренажный колодец пластиковыйСептик ErgoboxСтанция ПрофиСтанция Трансформер
      —Подземная емкость Термит, Накопитель + 1.2 (резервуар 1200 литров) септик

      Подземная емкость Термит, Накопитель + 1.2 (резервуар 1200 литров) септик

      Артикул: Накопитель + 1.2
      Термит
      Подземная емкость Термит, Накопитель + 1.2 (резервуар 1200 литров) септик
      Подземная емкость Термит, Накопитель + 1.2 (резервуар 1200 литров) септик
      Подземная емкость Термит, Накопитель + 1.2 (резервуар 1200 литров) септик
      Подземная емкость Термит, Накопитель + 1.2 (резервуар 1200 литров) септик
      Подземная емкость Термит, Накопитель + 1.2 (резервуар 1200 литров) септик
      Подземная емкость Термит, Накопитель + 1.2 (резервуар 1200 литров) септик
      28 750 ₽/шт
      Варианты цен
      28 750 ₽/шт
      Подробности
      Доступен к заказу (срок поставки 1-12 дней, уточняйте у оператора)
      Самовывоз - бесплатно
      Доставка - 800 ₽
      Характеристики
      Тип
      —
      Подземная емкость
      Материал
      —
      полиэтилен
      Назначение
      —
      для ГВС и ХВС
      Страна производитель
      —
      Россия
      Гарантия, лет
      —
      50
      Описание
      Вы можете купить Подземная емкость Термит, Накопитель + 1.2 (резервуар 1200 литров) септик  в нашем интернет-магазине "СантехМастер" по самой выгодной цене!
      Страна производитель: Россия

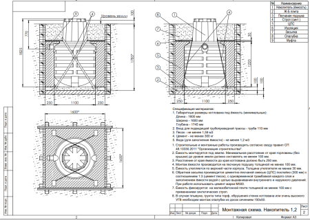
      Подземная емкость - это резервуар, который так же называют накопительными септиками, они не имеет выходной трубы, и все стоки поступающие из дома сохраняются внутри накопителя. Как правило, такие септики устанавливают в случаях, когда невозможен или запрещен слив сточных вод (например природоохранные зоны). Накопительный септик «термит» объемом 1.2 куба это самый малый представитель данной продуктовой линейки, этого объема будет достаточно, когда количество стоков минимально. Все септики накопители требуется рано или поздно откачивать по мере их заполнения.
      Технические характеристики
      Масса ёмкости    45 кг
      Общий объем    1 200 л
      Габариты с патрубками (Д*Ш*В)    1100*1100*1830

      Гарантия от производителя: 50 лет
      ВОЗМОЖНО ДОСТАВКА И УСТАНОВКА В ОДИН ДЕНЬ !!!!
      ЦЕНЫ УТОЧНЯЙТЕ У МЕНЕДЖЕРА  ПО ПРОДАЖАМ.  922-67-66 или 777-98-18
      28 750 ₽/шт
      Варианты цен
      28 750 ₽/шт
      Подробности
      Доступен к заказу (срок поставки 1-12 дней, уточняйте у оператора)
      В корзинуВ корзине
      Купить в 1 клик
      Самовывоз - бесплатно
      Доставка - 800 ₽
      Характеристики
      Тип
      —
      Подземная емкость
      Материал
      —
      полиэтилен
      Назначение
      —
      для ГВС и ХВС
      Страна производитель
      —
      Россия
      Гарантия, лет
      —
      50
      Цена действительна только для интернет-магазина и может отличаться от цен в розничных магазинах
      Все товары категории
      Все товары бренда Термит

      Нужна консультация?

      Наши специалисты ответят на любой интересующий вопрос
      Задать вопрос
      Каталог
      Бренды
      Компания
      Юридическим лицам
      Контакты отделов и руководителей
      Новости
      Сертификаты
      Информация
      Адреса магазинов
      Доставка
      Реквизиты
      Юридическая информация
      +7 (812) 602-77-78
      +7 (812) 602-77-78 Интернет-Магазин
      +7 (812) 602-77-73 Для Юридических лиц
      optstm@santehmaster.ru
      • Вконтакте
      1995 - 2026 © СантехМастер - интернет-магазин сантехники в Санкт-Петербурге.
      Данный сайт и все информационные материалы, каталоги, статьи и цены, размещенные на сайте, носит информационный характер и ни при каких условиях не является публичной офертой
      Каталог
      По всему сайту
      По каталогу